- Photos
- Localisation
- Infos Lens



Description Appartement Lens
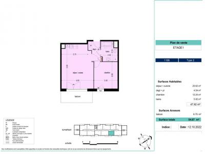
A LENS, dans la résidence neuve LES HAUTS DE MONTGRE, nous vous proposons un appartement T2 n°1106 de 47.85 m² composé d'une entrée avec placard, une salle de bains avec WC, un séjour cuisine donnant sur un balcon de 6.75 m² ainsi qu'une chambre. Une place de parking n°117.
Entretien parties communes, ascenseur et espaces verts communs, compris dans les provisions sur charges mensuelles et donnant lieu à une régularisation annuelle. Les honoraires de location TTC (à la charge du locataire) incluent le montant de rédaction des états des lieux facturé pour 144 euros TTC, après réalisation lors de l'entrée dans les lieux. Disponibilité prévisionnelle au 10/08/2025. Pour plus de détails sur ce logement, vous pouvez consulter la fiche descriptive de ce bien, sur notre site internet AFEDIM. Logement en cours de construction - DPE à venir.
Les informations sur les risques auxquels ce bien est exposé sont disponibles sur le site Géorisques :
- Annonce Pro
- Pièces2
- Chambre1
- Sbd1
- Surface47 m2

