- Photos
- Localisation
- Infos Paris-19eme-arrondissement







Description Appartement Paris-19eme-arrondissement
75019, PARIS 19ème, SÉRURIER - APPARTEMENT 108 M², 4 Pièces, 3 Chambres avec ascenseur et cave - Charme de l'ancien, immeuble en brique, à proximité: parc des BUTTES CHAUMONT, commerces, écoles, bars, restaurants, loisirs, équipements sportifs et piscines, METRO Porte de Pantin, bus 75, 71, Tramway.
EffiCity, l'agence qui estime votre bien en ligne, vous propose de découvrir cet appartement situé boulevard Sérurier, à quelques pas de la Philharmonie et de la Grande halle de la Villette, du parc des Buttes Chaumont et du parc du Chapeau rouge.
L'immeuble est bien entretenu, digicode, cour intérieure, ascenseur en fer forgé, taxe foncière 2274E, charges annuelles 5000E chauffage et eau chaude compris.
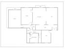
Situé au 3ème étage, cet appartement de 107,37 m² loi Carrés, sera magnifique avec quelques rafraichissements. Les pièces sont spacieuses, lumineuses, les fenêtres disposent de double vitrage.
La surface de l'entrée est de 11m2, le salon-salle à manger de 35 m2 permet de créer une 3ème chambre pour compléter les 2 existantes, vous apprécierez les rangements et les beaux volumes.
La cuisine est séparée et aménagée, la salle de bain est spacieuse et le WC est séparé.
Contactez-nous dès maintenant pour organiser une visite et laissez-vous séduire par cet appartement parisien, spacieux et fonctionnel.
Les informations sur les risques auxquels ce bien est exposé sont disponibles sur le site Georisque : georisques. gouv. fr
Roseline Azan - EI - est Agent Commercial mandataire en immobilier, immatriculé au Registre Spécial des Agents Commerciaux du Tribunal de Commerce de Paris 15e Arrondissement sous le n°927763565.
Siège social du mandant : effiCity, 48 avenue de Villiers - 75017 PARIS - Société par Actions Simplifiée, société au capital de 132 373,05 euros, immatriculée au RCS Paris 497 617 746 et titulaire de la Carte professionnelle CPI 7501 2015 000 002 025 - CCI Paris IDF - Caisse de Garantie : GALIAN Assurances 89 rue de la Boétie 75008 Paris
- Annonce Pro
- Pièces4
- Chambres3
- Sbd1
- Séjour17 m2
- Surface108 m2
- DPEE




