- Photos
- Localisation
- Infos Saint-leu-la-foret



Description Appartement Saint-leu-la-foret
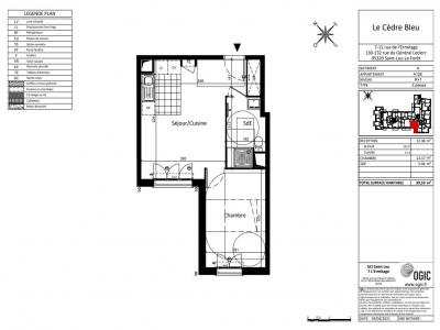
A SAINT LEU LA FORET, dans la résidence récente LE CEDRE BLEU, nous vous proposons un appartement T2 au 1er étage numéro A126, d'une surface de 39.59m². Il se compose d'une entrée, d'une pièce de vie de 22.38 m² avec une cuisine, d'une salle d'eau avec WC ainsi que d'une chambre de 12.17m². Une place de parking intérieur numéro 71 complète le lot. Chauffage et eau chaude collectif gaz. Entretien parties communes, entretien ascenseur, compris dans les provisions sur charges mensuelles et donnant lieu à une régularisation annuelle.
Les honoraires de location TTC (à la charge du locataire) incluent le montant de rédaction des états des lieux facturé pour 119 euros TTC, après réalisation lors de l'entrée dans les lieux.
Pour plus de détails sur ce logement, vous pouvez consulter la fiche descriptive de ce bien, sur notre site internet AFEDIM.
Les informations sur les risques auxquels ce bien est exposé sont disponibles sur le site Géorisques :
- Annonce Pro
- Pièces2
- Chambre1
- Séjour22 m2
- Surface39 m2
- DPEC



