- Photos
- Localisation
- Infos Sennecey-les-dijon



Description Appartement Sennecey-les-dijon
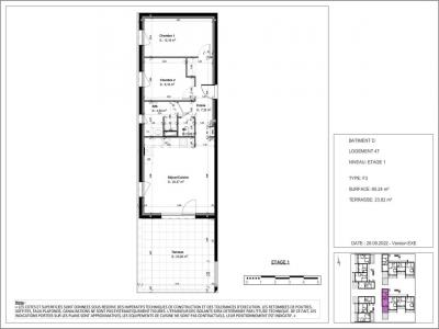
A SENNECEY LES DIJON, dans les résidence neuve "BERGAMOTE", nous vous proposons ce T3 n°47 au 1er étage du bâtiment D de 60.24m². Il se compose d'une entrée/dégagement avec placard menant aux deux chambres de respectivement 12.18m² et 9.16m², à la salle d'eau, un WC séparé ainsi qu'au séjour cuisine de 25.37m². donnant sur une terrasse de 23.82m². Une place de parking extérieure n°65 et un garage N°65 accompagnent le logement. Chauffage et eau chaude individuels au gaz. Entretien parties communes, compris dans les provisions sur charges mensuelles et donnant lieu à une régularisation annuelle. Les honoraires de location TTC (à la charge du locataire) incluent le montant de rédaction des états des lieux facturé pour 180 euros TTC, après réalisation lors de l'entrée dans les lieux. Plus de détails sur notre site AFEDIM. Logement neuf en cours de construction - DPE à venir
Les informations sur les risques auxquels ce bien est exposé sont disponibles sur le site Géorisques :
- Annonce Pro
- Pièces3
- Chambres2
- Séjour25 m2
- Surface60 m2
- DPEC




Location Saint-apollinaire