- Photos
- Localisation
- Infos Saint-fons



Description Appartement Saint-fons
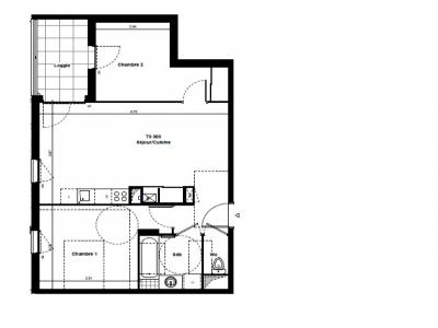
B303 - LE MARIUS - ST FONS. INTERIEUR DE RESIDENCE RECENTE (2021) BBC , T3 avec pièce de vie comprenant une cuisine aménagée (plaques vitro, four, hotte, meubles hauts et bas) accès balcon, deux chambres dont une avec placard aménagé, salle de bain avec baignoire et vasque, WC séparés. Garage individuel fermé en sous-sol sécurisé. CHAUFFAGE IND AU GAZ. VIDEOPHONE.
CONSOMMATION TOTALE D'ENERGIE ENTRE 468EUR et 633EUR/AN (prix moyen des énergies indéxées au 01/01/2021)
Les informations sur les risques auxquels ce bien est exposé sont disponibles sur le site Géorisques : www. georisques. gouv. fr
Les informations sur les risques auxquels ce bien est exposé sont disponibles sur le site Georisques : georisques.gouv.fr
- Annonce Pro
- Pièces3
- Chambres2
- Construction2021
- Surface57 m2
- DPEC
Contact



