- Photos
- Localisation
- Infos Chenove





Description Appartement Chenove
Appartement de type 4 au 5 rue George Sand à Chenôve
Quartier Le Mail, secteur Sand. Au sein d'une résidence construite en 1966 avec accès sécurisé par badge.
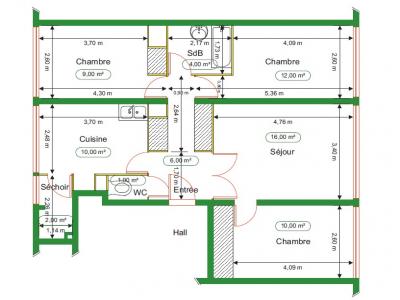
Situé au 3ème étage sans ascenseur, cet appartement loué non meublé de 74 m² se compose d'un agréable séjour ainsi que d'une cuisine fermée de 10 m² avec son cellier attenant.
L'espace nuit comprend 3 chambres, dont deux équipées de placards de rangement, une salle de bain et des WC séparés.
Le logement bénéficie du chauffage collectif au gaz, d'un contrat multi-services ainsi qu'un service d'astreinte 24 heures sur 24, 7 jours sur 7 inclus dans les charges.
Son emplacement permet de profiter de toutes les commodités, avec un accès rapide à la ligne de tram T2 ainsi qu'au réseau de bus Divia. Les emplacements de parking sont libres et gratuits autour de la résidence.
Pour toute information complémentaire, merci de contacter Madame Loane SOLANES, par mail ou par téléphone.
Pas de frais d'agence.
- Annonce Pro
- Pièces4
- Chambres3
- Sbd1
- Surface74 m2
- DPEC





Location Toutry