- Photos
- Localisation
- Infos Nantes







Description Appartement Nantes
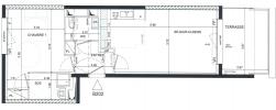
NANTES - QUARTIER BOTTIERE. A proximité de l'arrêt Souillarderie (ligne 1) du tramway, dans résidence récente BBC, type 2 comprenant une entrée avec placard, un séjour de 24m² donnant sur une terrasse de 10m², cuisine ouverte aménagée et équipée (plaques, four, hotte), une chambre avec placard, une salle d'eau attenante, wc. Le logement bénéficie d'une place de parking couvert.
Logement soumis à la Garantie des Loyers Impayés (GLI).
Les informations sur les risques auxquels ce bien est exposé sont disponibles sur le site Géorisques: .
Les informations sur les risques auxquels ce bien est exposé sont disponibles sur le site Georisques : georisques.gouv.fr
- Annonce Pro
- Pièces2
- Chambre1
- Sbd1
- Construction2015
- Surface50 m2
- DPEC
Contact




