- Photos
- Localisation
- Infos Nantes




Description Appartement Nantes
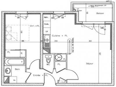
NANTES - QUARTIER VIEUX DOULON- T2 comprenant : Entrée avec placard, séjour sur parquet de 18.02 m² donnant sur balcon de 4.61m², cuisine ouverte avec placard, 1 chambre sur parquet avec placard, salle de bains, wc. Garage. CONDITIONS DE RESSOURCES - LOI SCELLIER INTERMEDIAIRE. Logement soumis à la Garantie des Loyers Impayés (GLI).
Les informations sur les risques auxquel ce bien est exposé sont disponibles sur le site Géorisque:
Les informations sur les risques auxquels ce bien est exposé sont disponibles sur le site Georisques : georisques.gouv.fr
- Annonce Pro
- Pièces2
- Chambre1
- Sbd1
- Construction2011
- Surface47 m2
- DPEC
Contact




