- Photos
- Localisation
- Infos Saint-fons



Description Appartement Saint-fons
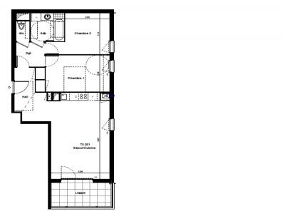
A201- LE MARIUS - ST FONS. T3 de 65m² DANS UNE RESIDENCE RECENTE (FIN 2021) A FAIBLE CONSOMMATION ENERGETIQUE. Belle pièce de vie de 28M² avec cuisine équipée et meublée (plaques vitro, four, meubles hauts et bas) ouvrant sur un balcon à vivre exposée sud. Un coin nuit desservant deux chambres dont une avec un placard, une salle de bain avec baignoire et vasque, WC séparés.
Garage individuel fermé en sous-sol sécurisé. CHAUFFAGE IND AU GAZ.
CONSOMMATION TOTALE D'ENERGIE ENTRE 497EUR et 672EUR/AN (prix moyen des énergies indéxées au 01/01/2021)
Les informations sur les risques auxquels ce bien est exposé sont disponibles sur le site Géorisques : www. georisques. gouv. fr
Les informations sur les risques auxquels ce bien est exposé sont disponibles sur le site Georisques : georisques.gouv.fr
- Annonce Pro
- Pièces3
- Chambres2
- Sbd1
- Construction2021
- Surface65 m2
- DPEC
Contact



