- Photos
- Localisation
- Infos Albertville



Description Appartement Albertville
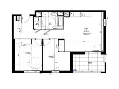
B203 OXYGENE EUR A SAISIR JOLI T3 AVEC BALCON A LEURINTERIEUR DEURUNE RESIDENCE NEUVE BBC DE STANDING Il se compose dEURune entée avec un grand placard, pièce de vie, une cuisine US (meubles haut et bas, hotte, plaque de cuisson et four) donnant sur le balcon, deux chambres en sol parquet avec placard, une salle de bain aménagée avec meuble sous vasque et sèche serviette. Deux places de parking en sous-sol. Chauffage individuel gaz. Visiophone.
Consommation d'énergie totale entre 500-730EUR par an (prix moyens des énergies indexés au 2021.2022.2023).
Les informations sur les risques auxquels ce bien est exposé sont disponibles sur le site Géorisques : www. georisques. gouv. fr
Les informations sur les risques auxquels ce bien est exposé sont disponibles sur le site Georisques : georisques.gouv.fr
- Annonce Pro
- Pièces3
- Chambres2
- Sbd1
- Construction2025
- Surface62 m2
- DPEC
Contact



