- Photos
- Localisation
- Infos Albertville



Description Appartement Albertville
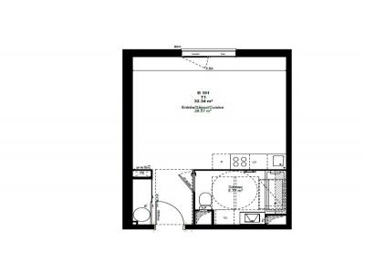
B101 OXYGENE - A VOIR ABSOLUMENT BEAU T1 DE 32M² DANS UNE RESIDENCE NEUVE BBC DE STANDING, L'appartement est composé d'une belle pièce de vie, un coin nuit, cuisine équipée et aménagée (meubles haut et bas et plaque de cuisson), une salle de bain aménagée et sèche serviette. Une place de parking en sous-sol. Chauffage individuel électrique. Visiophone.
Consommation d'énergie totale entre 460-670EUR par an (prix moyens des énergies indexés au 2021.2022.2023).
Les informations sur les risques auxquels ce bien est exposé sont disponibles sur le site Géorisques : www. georisques. gouv. fr
Les informations sur les risques auxquels ce bien est exposé sont disponibles sur le site Georisques : georisques.gouv.fr
- Annonce Pro
- Pièce1
- Sbd1
- Construction2025
- Surface32 m2
- DPEC
Contact



