- Photos
- Localisation
- Infos Brumath






Description Appartement Brumath
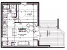
Dans la ville de BRUMATH, proche commerces et commodités, dans la résidence LE BELVEDERE, nous vous proposons un T2 de 43m² au RDC avec une terrasse de 16.68m². Il comprend une pièce de vie de 26.28m² avec cuisine aménagée, une chambre de 11.54m², une salle d'eau de 5.30m² avec douche, meuble vasque et WC, ainsi qu'un garage n°2 au RDC et une cave n°4. Eau chaude et chauffage collectif au gaz. Entretien parties communes compris dans les provisions sur charges mensuelles et donnant lieu à une régularisation annuelle.
Disponible le 13/09/2025
Les honoraires de location TTC (à la charge du locataire) incluent le montant de la rédaction des états des lieux facturé pour 129E TTC, après réalisation lors de l'entrée dans les lieux. Pour plus de détails sur ce logement, vous pouvez consulter la fiche descriptive de ce bien, sur notre site AFEDIM
Les informations sur les risques auxquels ce bien est exposé sont disponibles sur le site Géorisques :
- Annonce Pro
- Pièces2
- Chambre1
- Séjour26 m2
- Construction2021
- Surface43 m2
- DPEC



