- Photos
- Localisation
- Infos Boulogne-billancourt






Description Appartement Boulogne-billancourt
Chambre en colocation disponible à la location au sein d'un appartement meublé et équipé situé à Boulogne-Billancourt, dans un quartier animé et à proximité des transports en commun.
En louant cette chambre, vous rejoindrez la communauté et les événements organisés par l'initiative Wellow (sport, afterwork, bénévolat) et proposés aux locataires français et internationaux hébergés au sein des colocations Wellow (description ci-dessous).
Caractéristiques du logement :
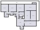
- Logement situé au 95 Rue de Sèvres, au 1er étage ;
- Colocation de 5 chambres ;
- Offrant 5 pièces et 101 m2, meublé et équipé ;
- 2 salle(s) de bains et 2 WC ;
- Cuisine équipée incluant un frigo, un micro-ondes, vaisselle, poêles et casseroles, ustensils de cuisine ;
- Logement équipé d'un lave-linge et de tous les équipements de ménage (aspirateur, serpillière, étendoir à linge, fer et table à repasser) ;
Caractéristiques de la chambre :
- Chambre de 11.03 m2, entièrement meublée ;
- Lit, draps, rangements, luminaires, décoration et bureau (voir photos et visite 3D ou vidéo youtube) ;
- Les charges mensuelles incluent les charges locatives classiques plus les abonnements d'électricité et gaz (le cas échéant), de chauffage et d'eau chaude, d'internet haut débit et l'assurance habitation.
Conditions de location :
- Bail individuel (non solidaire) éligible aux APL (aide de la CAF) ;
- Conditions d'éligibilité : un garant gagnant 2000E Net par mois en France OU faire appel à un organisme de garantie privée (hors garantie Visale) ;
- Dépôt de garantie de 950 E (Paris) ou 800 E (Lille) ;
- Durée minimale de séjour d'un mois ;
- Disponible dès le 08-01-2026;
À propos de Wellow :
Wellow est une initiative de logement créée dans le but de faciliter l'accès au logement les jeunes actifs et étudiants. Wellow loue de grands appartements souvent vacants auprès de propriétaire afin de les mettre à disposition à long terme, sous format de colocation. Une fo
- Annonce Pro
- Pièces5
- Chambres5
- Sbds2
- Surface20 m2


