- Photos
- Localisation
- Infos Morangis



Description Appartement Morangis
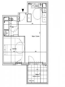
B12 L'INATTENDU : DANS UNE BELLE RESIDENCE NEUVE BBC DE STANDING, VENEZ DECOUVRIR CE CONFORTABLE T2 DE 47M2, CLAIR ET AU CALME comprenant un superbe séjour et cuisine US équipée et aménagée (meubles haut et bas, hotte, plaques vitro, four) de 29m2 ouvrant sur un joli balcon, une belle chambre en sol parquet, SDE avec meuble sous vasque et sèche serviette. Deux places de parking privatives. Chauffage gaz individuel. Accès à la résidence sécurisé par visiophone.
Les informations sur les risques auxquels ce bien est exposé sont disponibles sur le site Géorisques : www. georisques. gouv. fr
Les informations sur les risques auxquels ce bien est exposé sont disponibles sur le site Georisques : georisques.gouv.fr
- Annonce Pro
- Pièces2
- Construction2023
- Surface47 m2
- DPEC
Contact




