- Photos
- Localisation
- Infos Oberhausbergen



Description Appartement Oberhausbergen
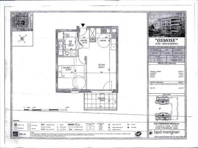
OBERHAUSBERGEN - Dans la résidence OSMOSE 2, nous vous proposons un appartement T2 A2-25 situé au 2ème étage comprenant une entrée avec placard, une chambre, un séjour avec cuisine aménagée et équipée ouverte donnant sur un balcon et une salle de bain avec WC. Cet appartement dispose également d'une place de stationnement N°750. Chauffage et eau chaude collectifs au gaz. Entretien des parties communes, entretien ascenseur, compris dans les provisions sur charges mensuelles et donnant lieu à une régularisation annuelle. Les honoraires de location TTC (à la charge du locataire) incluent le montant de rédaction des états des lieux facturé pour 130 euros TTC, après réalisation lors de l'entrée dans les lieux. Disponible le 15 décembre 2025.
Pour plus de détails sur ce logement, vous pouvez consulter la fiche descriptive de ce bien, sur notre site internet AFEDIM.
Les informations sur les risques auxquels ce bien est exposé sont disponibles sur le site Géorisques :
- Annonce Pro
- Pièces2
- Chambre1
- Sbd1
- Surface43 m2
- DPEC



