- Photos
- Localisation
- Infos Strasbourg




Description Appartement Strasbourg
STRASBOURG - 3 rue St Michel
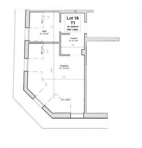
Dans un immeuble calme et bien entretenu, nous proposons à la location un T1 de 19.80m².
Le logement est au 5e et dernier étage (ascenseur jusqu'au 4e).
Petite cuisine équipée
Salle de bain avec baignoire
Branchement machine à laver
Lumineux
Chauffage individuel électrique
Disponible de suite
Les informations sur les risques auxquels ce bien est exposé sont disponibles sur le site Georisques : georisques.gouv.fr
- Annonce Pro
- Pièce1
- Surface20 m2
Contact

