- Photos
- Localisation
- Infos Saint-priest





Description Maison Saint-priest
En accord avec notre partenaire foncier, Parcelle de terrain à bâtir issue d'une division parcellaire. et d'une superficie 256 m²
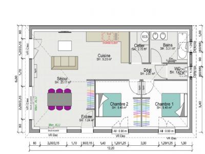
Découvrez ce projet de maison individuelle de plain-pied, alliant confort, fonctionnalité et esthétique contemporaine, idéal pour une résidence principale ou un investissement.
D'une surface habitable d'environ 65 m², cette maison a été pensée pour optimiser chaque espace et offrir une circulation fluide.
Composition du projet :
o Une belle pièce de vie lumineuse comprenant un séjour convivial et une cuisine ouverte, offrant un espace de vie chaleureux et moderne
o Deux chambres confortables, idéales pour un couple, une petite famille ou un bureau
o Une salle de bains spacieuse
o Un WC indépendant
o Un cellier / local technique, pratique pour le rangement et les équipements
o Une entrée fonctionnelle avec dégagement optimisé
Prestations extérieures :
o Architecture sobre et élégante
o Toiture en tuiles, style traditionnel
o Enduit de façade clair
o Menuiseries modernes apportant une belle luminosité naturelle
Les + du projet :
o Maison de plain-pied, accessible et facile à vivre
o Agencement optimisé sans perte de surface
o Projet personnalisable (plans, finitions, équipements selon vos envies)
o Construction conforme à la réglementation thermique en vigueur
o Idéal pour un premier achat, une résidence secondaire ou un investissement locatif
Prix hors frais de notaire, hors viabilité, peinture parquet et VRD. Nous contacter pour plus d'informations
- Annonce Pro
- Pièces3
- Chambres2
- Séjour30 m2
- Terrain256 m2
- Surface65 m2

