- Photos
- Localisation
- Infos Saint-genis-pouilly




Description Appartement Saint-genis-pouilly
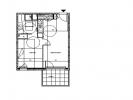
A207 LE MAXIME - A VOIR ABSOLUMENT JOLIE T2 LUMINEUX DE 39M² AVEC BALCON OFFRANT UNE SUPERBE VUE DEGAGEE DANS UNE RESIDENCE NEUVE BBC DE STANDING. Il se compose d'un séjour de 22m² ouvert sur cuisine équipée (meubles hauts et bas, hotte, plaque de cuisson et four) donnant sur un balcon, Une belle chambre de 12m², une salle de bain avec douche : meuble sous vasque et sèche serviette. Garage fermé en sous-sol sécurisé. Chauffage gaz individuel. Visiophone.
Les informations sur les risques auxquels ce bien est exposé sont disponibles sur le site Géorisques : www. georisques. gouv. fr
Les informations sur les risques auxquels ce bien est exposé sont disponibles sur le site Georisques : georisques.gouv.fr
- Annonce Pro
- Pièces2
- Sbd1
- Construction2021
- Surface39 m2
- DPEC
Contact



