- Photos
- Localisation
- Infos Beaurecueil







Description Appartement Beaurecueil
RARE A LA VENTE :
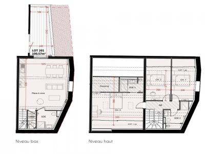
Dans une résidence neuve de haut standing idéalement située en bord du célèbre Cours Sextius à Aix en Provence, découvrez ce magnifique duplex type 4 de 100 m² alliant confort, volumes et prestations premium et place de parking privative.
Ce duplex se compose de :
Au rez-de-chaussée:
- Une entrée
- Un grand séjour avec cuisine ouverte
- Une salle d'eau et WC
A l'étage:
- Deux chambres avec placard
- Une suite parentale avec dressing et salle d'eau
- Une salle d'eau commune
La pièce de vie est spacieuse, lumineuse et donne accès à la terrasse d'environ 13 m².
Une place de parking privée et sécurisée peut compléter le lot.
La résidence est équipée d'un ascenseur et propose des matériaux de haute qualité.
L'emplacement est rare à Aix en Provence, dans un cadre calme et recherché, à deux pas de toutes les commodités du Cours Sextius et du cours Mirabeau.
Pour plus d'information, contactez-nous.
Prix : 997 000 E FAI avec place de parking
- Frais de notaire réduits.
A très vite chez MJ IMMOBILIER.
- Annonce Pro
- Pièces3
- Chambres2
- Séjour33 m2
- Construction2026
- Surface100 m2

