- Photos
- Localisation
- Infos Chambery



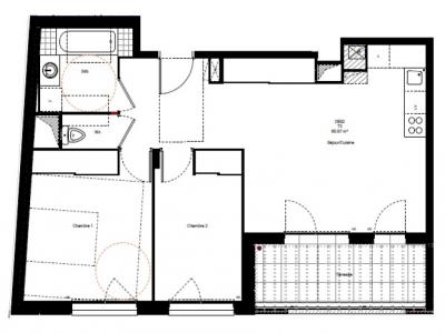
Description Appartement Chambery
D502 LES PIERRES MARINES : EN ETAGE ELEVE D'UNE RESIDENCE RECENTE DE STANDING A FAIBLE CONSOMMATION ENERGETIQUE T3 SANS VIS-A-VIS OFFRANT UNE VUE DEGAGEE ET SUR LA RIZE. Il comprend une pièce à vivre de 25m² avec cuisine US aménagée (plaques vitro, four, hotte, meubles hauts et bas) ouvrant sur une confortable terrasse sans vis-à-vis. 2 chambres en sol parquet avec placard mural aménagé. Salle de bain avec meuble sous vasque et sèche-serviettes. Garage fermé en sous-sol sécurisé. CHAUFFAGE IND AU GAZ. VISIOPHONE. PROCHE DU CENTRE VILLE ET DE LA GARE SNCF. Consommation d'énergie totale entre 390 euros et 527 euros par an (prix moyens des énergies indexés au 1er janvier 2021).
Les informations sur les risques auxquels ce bien est exposé sont disponibles sur le site Géorisques : www. georisques. gouv. fr
- Annonce Pro
- Pièces3
- Chambres2
- Surface60 m2
- DPEC



