- Photos
- Infos Suresnes







Description Appartement Suresnes
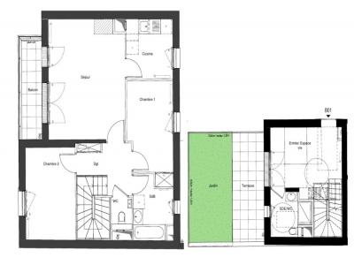
Fiche Id-REP167051 : Suresnes, T4 4p duplex - terrasse jardin et pk d'environ 82 m2 comprenant 4 piece(s) dont 3 chambre(s) + Terrasse de 31 m2 - Construction 2024 R?sidence standing - Equipements annexes : jardin - terrasse - balcon - parking - digicode - double vitrage - ascenseur - - chauffage : Gaz Collectif Livraison imm?diate - frais de notaires r?duits - Classe Energie B : 70 kWh.m2.an - (DPE ancienne version) - Plus d'informations disponibles sur demande... - Mentions légales : Proposé à la vente à 690000 Euros (honoraires à la charge du vendeur) - Classe Energie B : 70 kWh.m2.an - (DPE ancienne version) - Bien en copropriété - Charges annuelles : 2755 Euros/an (soit 230 Euros/mois) - Affaire suivie par Mr Maximilien ZANIER (Agent immobilier - Responsable) - Reseau Immo-Diffusion Bagnolet - Pour plus d'informations, contactez notre secrétariat au 09 74 53 13 81 (Appel gratuit ou prix d'une communication locale)
- Annonce Pro
- Pièces4
- Chambres3
- Construction2024
- Terrain31 m2
- Surface82 m2
- DPEB



