- Photos
- Localisation
- Infos Cleden-poher







Description Maison Cleden-poher
Longère sans vis à vis, terrain clos et entretenu de 1900 m².
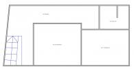
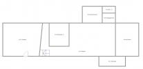
3 chambres dont 1 en Rez-de-chaussée
2 entrées en Rez-de-chaussée : cuisine et salon séjour. 1 salle d'eau, 1 wc
En étage : 2 chambres, 1 wc
Dépendances : 1 hangar de 100 m², 1 atelier sur deux étages 45 m² au sol remise 40 m²
Chauffage au bois / électricité
Cour bitumée, double vitrage, volets roulants solaires en façade, arrière drainée, enduits
Budget : 198 000 euros honoraires à la charge du vendeur.
Pour visiter et vous accompagner dans votre projet, contactez Philippe BALAC, au 07 60 72 60 23 ou par courriel à honoraires 7 %
Cette présente annonce a été rédigée sous la responsabilité éditoriale de Philippe BALAC agissant sous le statut d'agent commercial immatriculé au RSAC QUIMPER 753373794 auprès de la SAS PROPRIETES PRIVEES, Réseau national immobilier, au capital de 40000 euros, 44 ALLÉE DES CINQ CONTINENTS - ZAC LE CHÊNE FERRÉ, 44120 VERTOU, RCS Nantes n° 487 624 777 00040, Carte professionnelle T et G n° CPI 4401 2016 000 010 388 CCI Nantes-Saint Nazaire. Garantie GALIAN - 89 rue de la Boétie, 75008 Paris
Mandat réf : 431815 - Le professionnel garantit et sécurise votre projet immobilier.
Consommation énergie primaire E 284 kWh/m2 par an
Gaz Effet de Serre B 9 CO2/m2/an
Les informations sur les risques auxquels ce bien est exposé sont disponibles sur le site Géorisques : www. georisques. gouv. fr
- Annonce Pro
- Pièces6
- Chambres3
- Terrain1900 m2
- Surface107 m2
- DPEE





Vente Ouessant