Terrain 550 m² 225 900 €

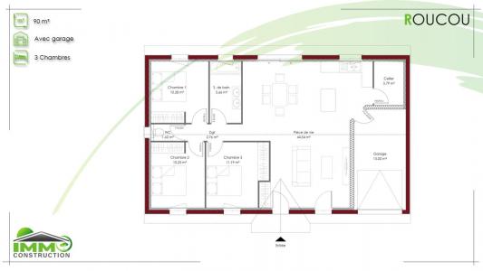
Annonce n°18924724 : Maison neuve en projet de construction sur la commune très recherchée de Saint-Vincent-de-Paul. La distribution des pièces comprend 3 chambres, une belle pièce de vie lumineuse avec cuisine ouverte, salle de bains équipée, wc indépendant, cellier et ...










