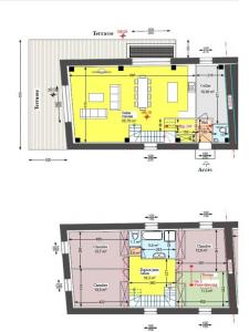
Appartement 20 m² 119 900 €

Annonce n°18143701 : Spécial investissement studio Villeurbanne. Ce studio est situé à Villeurbanne secteur Reconnaissance Balzac. Il se trouve à proximité des écoles, des commerces, des transports en commun et du centre ville de Lyon. La copropriété est calme et bien ...










